Elektronica
De volgende functies heeft de kipper:
- kippen
- oplegsteunen
- milieukleppen onafhankelijk te bedienen
- verlichting
De kipper-trailer heeft een eigen ontvanger om alle functies te laten uitvoeren, alleen de verlichting
wordt aangestuurd via de truck.
De kipper heeft in totaal 4 motoren 2 voor de kleppen. 1 voor de trailer poten en 1 voor de cilinder.
Om de motoren aan te sturen heb ik gebruik gemaakt van duo-switches van robbe.
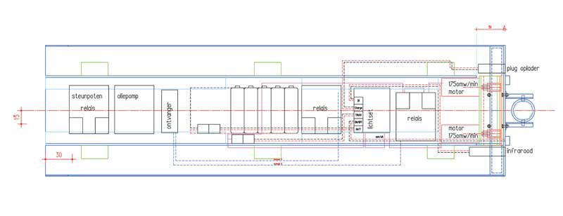
Hieronder staat het schema van alle kabels, accu, motoren en schakelaars.

Normaal kun je een servo gelijk aansturen via de ontvanger omdat de ontvanger een spanning geeft van
tussen de 4,8 en 6 volt.
De motoren hebben een spanning nodig van 12volt dus de motoren op de ontvanger aansluiten is geen optie.
Er is dus een elektrische schakelaar nodig om de motoren aan te sturen dit zijn de duo-switches van robbe.
De duo switches kunnen de motoren alleen maar vooruit en achteruit bedienen het is dus geen vaartregelaar.
De mileukleppen worden automatisch uitgezet door schakelaar in de bak. zie figuur. Elke klep heeft 2 schakelaars
Op elke schakelaar zit een diode. Een diode laat de stroom maar aan 1 zijde door. Deze diode's waren nodig
omdat de schakelaar's de stroom onderbreken en de motoren toch weer de andere kant op moeten draaien.
Dus bij een tegengesteld signaal gaat de klep weer open.
De stroom kan dus wel via de diode


schakelaar's voor de kleppen diode aan de schakelaar
De hydraulische cilinder wordt door een elektronische schakelaar van wedico aangestuurd. De snelheid is hierbij wel regelbaar.
De steunpoten worden ook bedient door een duo-switch van robbe. Op de steunpoten heb ik geen schakelaars gemaakt. Ik moet dus
zelf de uitgeschoven lengte van de poten in de gaten houden.
Ik heb eerst een proefopstelling gemaakt of alles wel werkte en daarna heb ik alles ingebouwd. Het blijkt dat de motoren van de milieukleppen en van
de steunpoten de ontvanger storen vooral als ik 2 motoren laat draaien. Als ik 1 motor laat draaien is het probleem een stuk minder.
Ik heb al van alles geprobeerd om de storing te verhelpen maar het is nog steeds niet 100% verholpen.
Ik denk dat het aan de motoren van conrad ligt.
Hieronder een foto van alle ingebouwde elektronica. De ruimte had ik achteraf toch allemaal nodig.


Onder de duo switches heb ik kunststof platen gemaakt omdat ik te weinig ruimte had om de draden aan te sluiten. De duo-swicth
zit nu wat hoger zodat ik de draden beter kan aansluiten en nu kan er ook geen kortsluiting ontstaan in de
duo-switch (onderzijde elektronica is niet beschermd)
Nu nog alle kabels aansluiten die van het onderstel komen. Ik heb wel alles zo aangesloten dat ik de bak er nog van af kan halen
De draden heb ik met stekkers aangesloten.